Casas prefabricadas y sistemas constructivos
En Prefabricados MD21 ofrecemos soluciones profesionales vinculadas a casas prefabricadas, centradas en la fabricación y suministro de elementos de hormigón para sistemas constructivos eficientes y duraderos.

Fabricación de elementos prefabricados de hormigón
Suministro de piezas estructurales y constructivas
Colaboración con técnicos y constructoras
¿Qué ofrecemos exactamente?
- Fabricación de elementos prefabricados de hormigón
- Suministro de piezas estructurales y constructivas
- Colaboración con técnicos y constructoras
No vendemos viviendas cerradas “llave en mano”, sino que participamos como fabricantes de componentes esenciales dentro del proceso constructivo.
Enfoque técnico y profesional
Nuestro trabajo se integra en proyectos bien definidos, aportando materiales resistentes, precisos y adaptados a cada diseño.
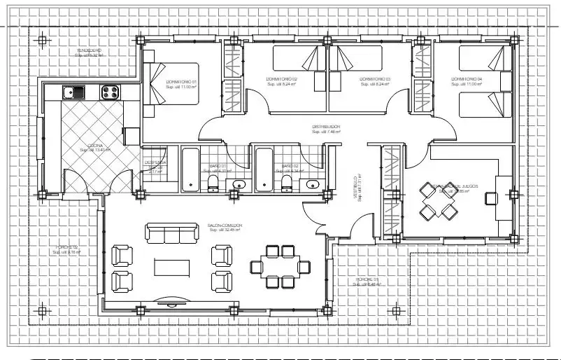
Nuestro sistema está diseñado para que con un arquitecto puedas diseñar la casa de tus sueños, en altura y distribución
Ventajas
- Se trata de estructuras que necesitan un 70% menos de tiempo de construcción que las tradicionales, debido a que se producen en fábrica y se desplazan al lugar deseado cuando están preparadas para su montaje, por tanto, introduce un gran beneficio al cliente final, por el acortamiento de los plazos de entrega
- Su alta resistencia, gracias al hormigón son viviendas resistentes al fuego y se caracterizan por dotar a la vivienda de un buen aislamiento acústico, además de ofrecer un gran ahorro energético, ya que las viviendas convencionales precisan de puentes térmicos, estas viviendas son capaces de mantener de forma más eficientes las temperaturas interiores entorno a los 12º-15º en invierno, en lugares cuya temperatura exterior llega hasta -5º
- Su bajo o nulo mantenimiento, se trata de estructura pretratadas que no requieren ningún mantenimiento posterior.
- Su larga vida útil, el hormigón es un material que ofrece una alta durabilidad.
- Comprometidas con la sostenibilidad, desde su construcción, genera muchos menos residuos que una obra convencional, y su mantenimiento posterior, que no genera ninguno.
- Casas con una alta rentabilidad calidad-precio, ya que su construcción requiere un menor tiempo de construcción, por lo que abarata de una forma notable su producción, que se traduce en una vivienda más económica para el cliente final.
Alturas
Puede ser de 1, 2 y 3 alturas, según tus necesidades.
Calidades
Colaboración con arquitectos para definir los proyectos.
Diseño
Compártenos una simple foto que te diremos si es posible. ¡Seguramente lo sea!
Garantía
Todos nuestros productos llevan la garantía de construcción.
Contacta con nosotros
Consúltanos tu proyecto y te indicaremos cómo podemos participar en su desarrollo.





